ARDEN HILLS REGENERATION

Mitlyng Design Team:
Ashley Mitlyng, Katie Loecken, Mary Begley

Photography:
Half Acre House

Contractor:
Yanz Builders

REFOCUSED ON THE FAMILY

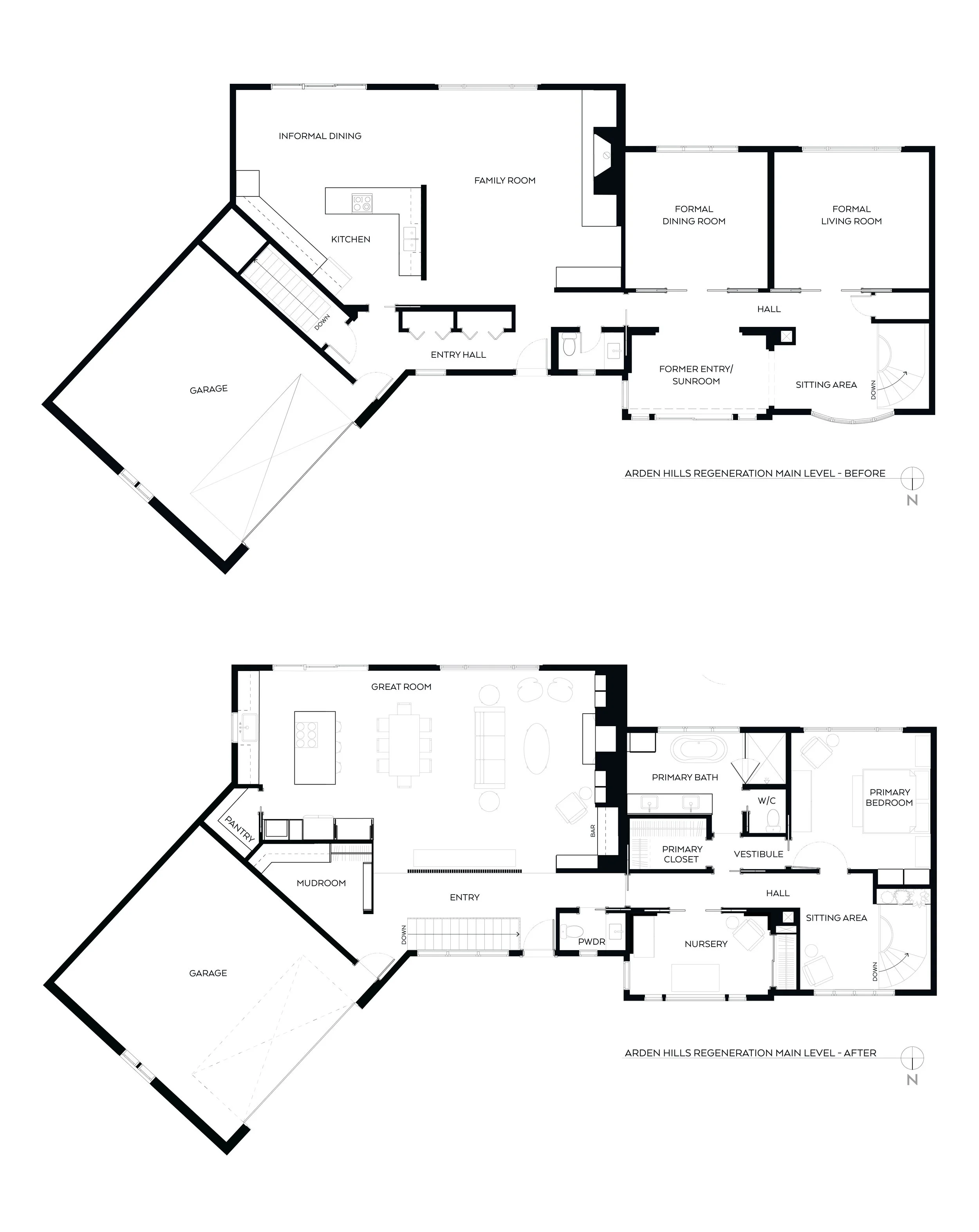
Built in 1969, the original floor plan of this home remained largely untouched. It had a unique layout, with all public spaces on the main level and all private family spaces on the lower-level walkout.

As built, the 2,000 square foot main level consisted of formal rooms: entry (since converted to a sunroom), dining, and living spaces, as well as informal spaces: entry, family room, dining, and kitchen.

Since the days of formal entertaining are long gone for most families, we reimagined these redundant living and dining spaces as a main-level primary suite.


PROGRAM SWAP

We transformed the former entry sunroom into a nursery, which is now adjacent to the primary bedroom. By swapping the sliding exterior doors for a large picture window (salvaged from the kitchen) and installing double pocket doors, the room is private for its current use as a nursery yet can easily convert to an office in the future.


SUITE UPGRADE

The new primary suite is where the formal living and dining rooms used to be. Now, the west wing of the house contains all the family bedrooms. The entry to the primary bedroom is located off a sitting room with a spiral stair to the lower-level bedrooms. And a vestibule connects the primary bedroom to the primary bath and closet, allowing one spouse to get ready for the day while the other sleeps. By retaining the original brick wall from the backside of the fireplace, the primary bath feels warm and timeless. The original windows in the former dining room remain, and now frosted and tempered they add a diffused spa-like daylighting to the elegant soaker tub and walk-in shower. 



Before - Formal Dining Room

After - Primary Bathroom (existing windows and brick)


WELCOMING ENTRY

We also redesigned the singular entrance to the main living area to accommodate both guests and family members. Relocating the east stair from a dark corner to the front entry brought light and grandeur to the space.

Formerly, when walking through the front door you would be confronted by a row of closets in a dark hallway. Now you are greeted by the open stair and slat wall. The walnut slats screen the great room yet allow sunlight through.

Before - Entry

After - Entry


ENTERTAINING MADE EASIER

The large open-concept great room now includes the living, dining, and kitchen. Once located in the triangular corner of the house, we reconfigured the kitchen into a more efficient “L”-shaped layout, including a corner pantry and a central island. The close proximity to the deck and yard allows for modern entertaining.


Before - Kitchen (tucked in triangular corner of house)

After - Kitchen (centered on great room)


BUILT-IN SUPPORT

At the opposite end of the great room, across the dining table, is the living space featuring the hard-working hearth. The homeowners loved the original Chicago brick fireplace, but it was visually heavy and provided no storage.

We had the brick carefully salvaged and re-installed as the new fireplace surround, flanked by built-in walnut cabinets and bookshelves. As an extension of the hearth, we also incorporated a bar. This small entertaining zone, opposing the kitchen, serves as a bookend to the space.


A SPACE TO SUPPORT
EVERY STAGE OF LIFE

What was formerly a floorplan full of outdated, redundant spaces is now a carefully-appointed great room and primary suite for a modern way of living. This home now serves the growing needs of a young family from newborn life to aging in place — a truly forever home.


The success of this project is due to the large involvement of the homeowner in carefully selecting the interior finishes and furniture. The aesthetic of the home is a collection of pieces that play on the original modern 1969 design juxtaposed with the homeowner’s love for antiques. The finishes collaborate with the Architecture in elements like the structural slat wall and the gracious amount of carefully-designed cabinetry and built-ins. It was an honor to work side-by-side with the homeowners to help make their dreams a reality for their family!




PRESS

Star Tribune, 04.28.2023: 2023 Home of the Month Announcement

Star Tribune, 01.13.2024: Home of the Month Article

Previous
Previous

A SPANISH CRAFTSMAN REINVENTED

Next
Next

RAMBLER REVISED